



Das Zweifamilienhaus 200 Norderney ist im typischen Stadthaus-Design, Quadratisch-Praktisch-Gut und vermittelt so eine gemütliche Wohn-Atmosphäre. In den zwei Wohnungen unter einem Dach haben die Bewohner clever ausgedachte Grundrisse und somit ausreichend Raum für sich in jeder der zwei Wohneinheiten. Das Treppenhaus lädt zu einem netten Plausch in der Hausgemeinschaft ein.
Durch den offen gestalteten Wohn- Essbereich und den direkten Übergang zur Küche wird sich der Großteil des Alltags hier abspielen. In den weiteren Zimmern im Erdgeschoss finden die Bewohner Raum für sich um zur Ruhe zu kommen oder den Platz für Ihre persönliche Entfaltung zu Nutzen.
Der moderne Wohnkomfort wurde im Obergeschoss genauso wie im Erdgeschoss umgesetzt. Wie im Erdgeschoss kommen im geräumigen Wohn- Essbereich alle zusammen. Im Obergeschoss haben Sie sogar drei weitere Zimmer für einen individuellen Rückzugsort.
Das Zweifamilienhaus 200 Norderney ermöglicht vielfältige Nutzungsvarianten – ob das altbewährte Mehrgenerationen-Wohnen, die klassische Vermietung oder die Verwirklichung eines gemeinsamen Haustraumes mit Freunden.




Das Zweifamilienhaus 210 Pellworm hat gleich mehrere Vorteile – denn es bietet Platz und Komfort für zwei Familien auf den beiden Etagen des Hauses.
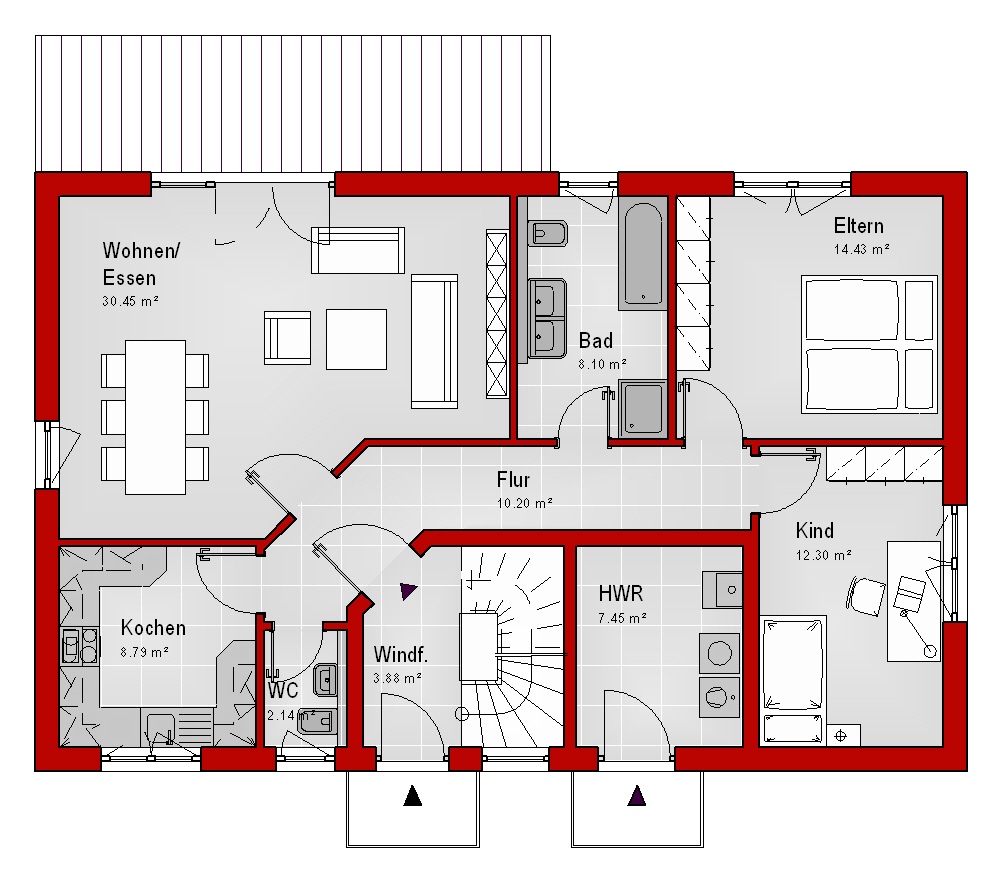
Das Erdgeschoss bietet genügend Platz für einen großen Wohn- und Essbereich mit einer geschlossenen Küche sowie für ein Kinder- und ein Eltern-Schlafzimmer. Durch die bodentiefen Fenster im Wohnzimmer haben Sie einen wunderschönen Blick direkt in Ihren Garten.
Hell und geräumig wirkt auch das Obergeschoss, hier haben Sie vom Wohn- Essbereich aus die Möglichkeit den schönen Balkon nicht nur als Platz für das Familienfrühstück an schönen Tagen zu nutzen, sondern er lädt auch zum Verweilen mit Freunden ein. Ebenso die restlichen Zimmer inklusive Küche sowie ein gemütliches Schlafzimmer, und ein Kinderzimmer sind großzügig gestaltet und laden direkt zum Wohlfühlen ein.
Auch das Zweifamilienhaus 210 Pellworm ermöglicht vielfältige Nutzungsvarianten – ob das altbewährte Mehrgenerationen-Wohnen, die klassische Vermietung oder die Verwirklichung eines gemeinsamen Haustraumes mit Freunden.