Massiv gebaut und für Generationen bestimmt!



Viel Wohntraum für die ganze Familie
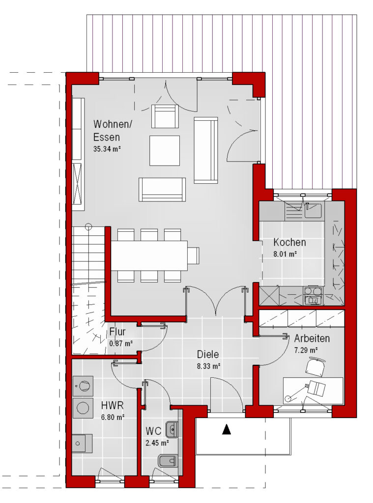
Hier kann man leben und es sich gut gehen lassen – im Doppelhaus 145 Wangerooge fehlt es an nichts! Der offene, lichtdurchflutete Wohn- und Essbereich wird hier zum Mittelpunkt des Hauses. Die Familie trifft sich hier zum gemeinsamen Frühstücken oder für gemütliche Spiele-Abende. In der geräumigen Küche gibt es eine kleine gemütliche Essecke, von der aus beim Kochen zugeschaut werden kann. Den separaten Garderobenbereich kann man schon als Highlight bezeichnen, da der im Flur für Ordnung sorgt.
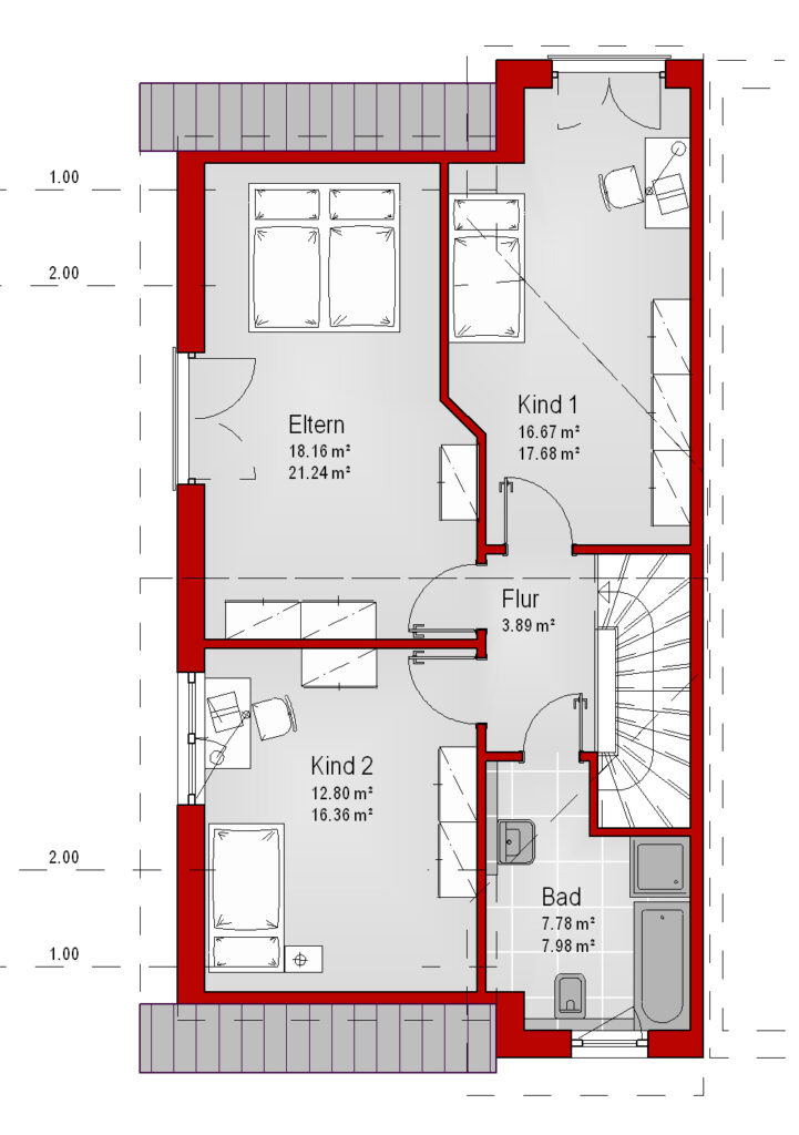
Im Obergeschoss sorgen die gradlinige und gewagte Aufteilung für genügend Platz um ein großes Elternschlafzimmer und zwei ausreichend dimensionierte Kinderzimmer unterzubringen.
Ein echter Hingucker ist das Doppelhaus 145 Wangerooge und besticht durch seine moderne, geradlinige Architektur. Das Doppelhaus 145 Wangerooge eignet sich auch gut für kleine Grundstücke, da es die vorhandene Grundstücksfläche optimal ausnutzt und trotzdem viel Wohnraum für zwei Familien bietet.



Das Doppelhaus 159 Langeroog überzeugt nicht nur mit seiner modern gestalteten Optik. Die gradlinige aber doch anspruchsvolle Architektur bietet für die ganze Familie einen besonders hohen Wohnkomfort mit einem Hauch von Luxus.
Auf den immer knapper werdenden Grundstücksflächen wünschen sich immer mehr Menschen ein massiv gebautes Haus. Das Doppelhaus 159 Langeroog wird diesem Trend gerecht, es ist für viele Bauherren mit Familie leichter finanzierbar und lässt zu mietähnlichen Konditionen den Traum vom Hausbau in Stadtnähe wahr werden.
Der urbane Charakter, die geradlinige Architektur und die moderne Grundrissgestaltung machen dieses Doppelhaus im Stadthausdesign zu einem echten Familienhaus.
Das Doppelhaus 159 Langeroog steht für etwas Luxus gepaart mit schlichter Eleganz für den anspruchsvollen Premium-Massivhaus Kunden.
Durch die bodentiefen Fenster ist der Wohn- Essbereich mit direktem Zugang zur Küche, ein lichtdurchfluteter und dadurch großzügig wirkender Raum.
Dadurch ergibt sich genug Platz zum Essen für die ganze Familie. Die Diele im Eingangsbereich des Hauses ist großzügig geplant und bietet viele Abstellmöglichkeiten für Dinge des täglichen Gebrauchs.
Unter der geschlossenen, einläufigen Treppe befindet sich ein Abstellraum, der den vorhandenen Platz optimal ausnutzt.
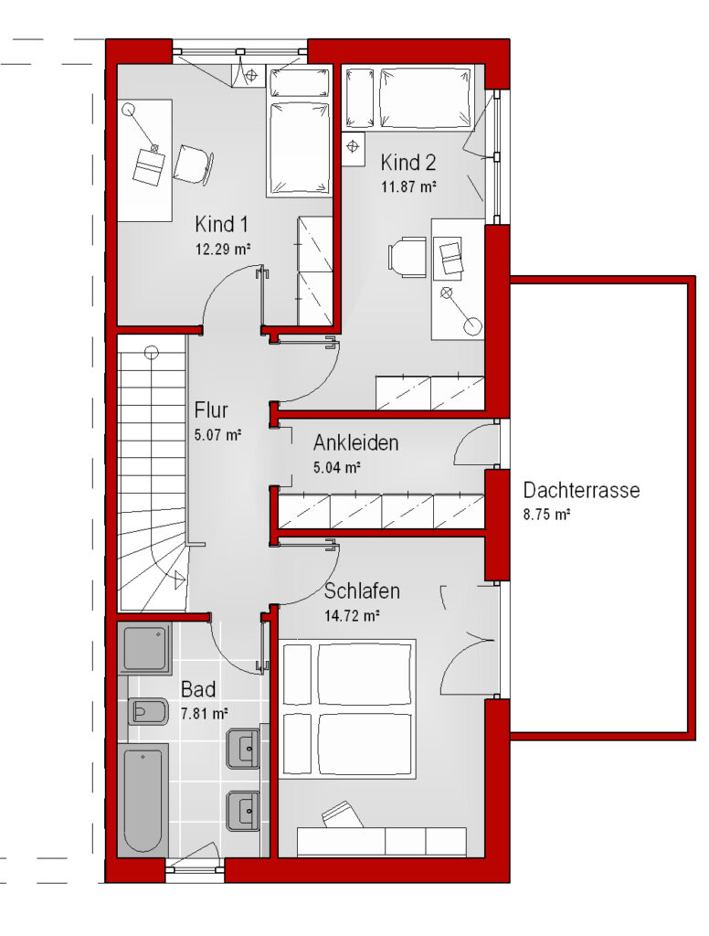
Die Zimmer im Obergeschoss verfügen ebenfalls über lichtbringende Fenster, die die Räume mit viel Tageslicht fluten.
Die Ankleide im Schlafzimmer bietet viel Stauraum und lässt den Traum vom begehbaren Kleiderschrank wahr werden. Von beiden Räumen kommt man auf die pfiffig gestaltete Dachterrasse und kann hier die Seele baumeln lassen.